



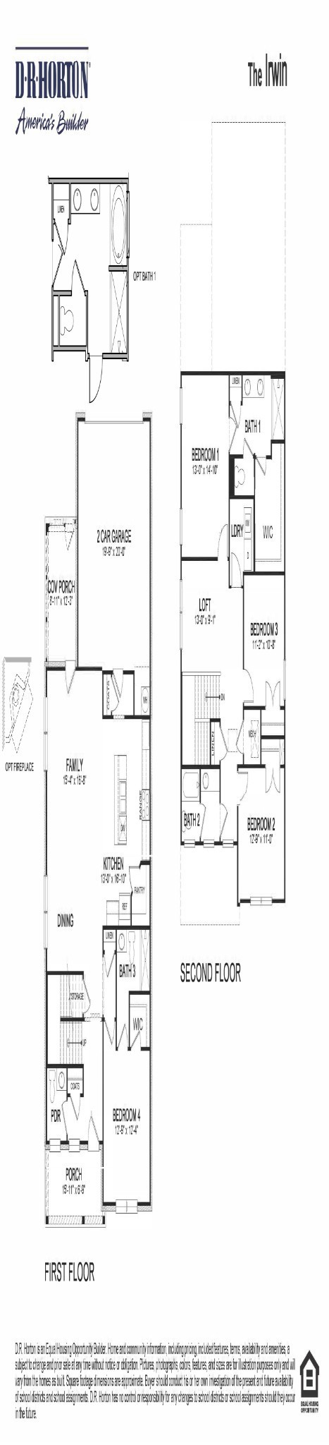
Welcome to the Irwin plan by DR Horton, located in the desirable Harvest Point community. This new construction home is just starting to get underway with an estimated completion time of late July, offering buyers the opportunity to secure the highly sought-after homesite early in the building process. Positioned on a premium lot, this property features a rare and private back yard with no homes behind-providing peaceful views and added privacy! The Irwin plan offers a spacious open concept with seamless flow between the main living areas-ideal for both everyday living and entertaining. Thoughtful design elements and quality craftmanship are evident throughout this 4 bedroom, 3.5 bath with bonus space upstairs! Conveniently located near shopping, dining, and local amenities, Harvest Point combines comfort, accessibility, and community living. Don't miss an opportunity to own a brand-new home on a premium homesite with scenic views. Secure your home now and move in just in time for summer! Incentives include 3% of the purchase price with DHI Mortgage, our in-house lender! Call Ronda for more info!
| 4 days ago | Listing first seen on site | |
| 4 days ago | Listing updated with changes from the MLS® |
Each Keller Williams Realty office is independently owned and operated.
Compare listings
ComparePlease enter your username or email address. You will receive a link to create a new password via email.