



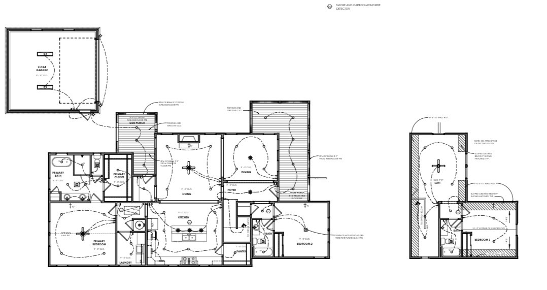
Ask me about Seller Assistance for Buyer's closing costs, rate buy downs or upgrades at the Builders Design Center **** This home will be complete in March of 2026 Welcome to Rutherford! This is the DAVENPORT floor plan, 2594 square feet, This 3 Bedroom 3 Bath Home so Beautiful with loads of open living space, Primary and 2nd bedrooms are on the main level. The 2nd level Has another Bedroom, Full Bathroom and awesome Bonus Living Area. The upstairs is its own living space. The Kitchen is equiped with a Double Wall Oven, Cooktop, Dishwasher and Microwave. This model has a 2 car garage that is drywalled with insulated garage door. Primary suite includes separate tub and shower and large walk in closet. Very open flowing Great Room Kitchen and Dining area. Large Rear covered back porch and HOA includes internet with you monthly dues. WOW!!!!
| a week ago | Listing first seen on site | |
| a week ago | Listing updated with changes from the MLS® |
Each Keller Williams Realty office is independently owned and operated.
Compare listings
ComparePlease enter your username or email address. You will receive a link to create a new password via email.