



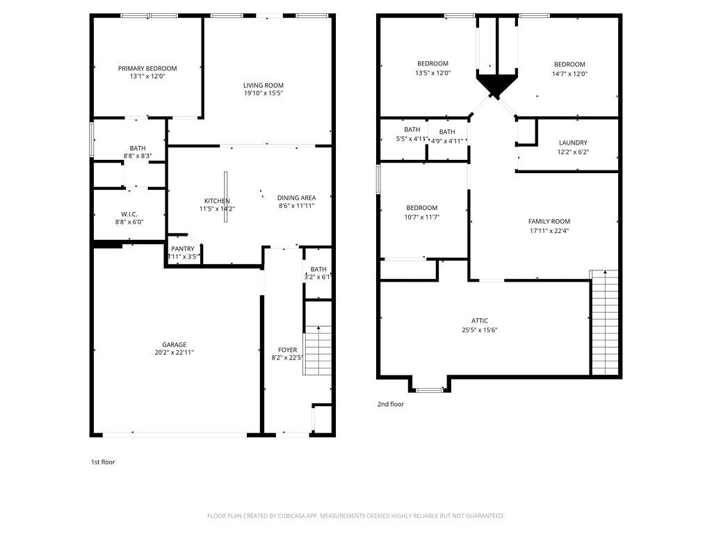
Click for Professional photos with floor plans. Local small high quality builder! Great location in the vibrant heart of Smyrna. Less than a mile to I-24 many restaurants, shopping and Starbucks if your a fan. You have your own 60 foot backyard! Fencing allowed, your yard is yours. Closing cost paid when using one of several local prefered lenders and Title Company. Affordable HOA fees! 0 Down THDA eligible. No carpet downstairs. 3 Bedrooms with bonus room and 2 finished car garage. Great floorplan with large living room, lots of cabinets in the kitchen and nice size bedrooms. Spacious kitchen with pantry, Custom cabinets with slow close doors and drawers. Granite counters. Smooth ceilings with crown molding. These units have separate firewalls and insulation between each side for safety, quiet and comfort. Large walk in Utility room. Separate Bonus room. All Brick and Hardie siding. No Vinyl siding! Seller incentives for financing. Local builder. Quality built. No neighbors directly behind you. Only 14 homes. Almost Complete. Bring your Realtor if you have one or contact us directly for showings or additional info. Additional floorplans to view
| a month ago | Listing first seen on site | |
| a month ago | Listing updated with changes from the MLS® |
Each Keller Williams Realty office is independently owned and operated.
Compare listings
ComparePlease enter your username or email address. You will receive a link to create a new password via email.