



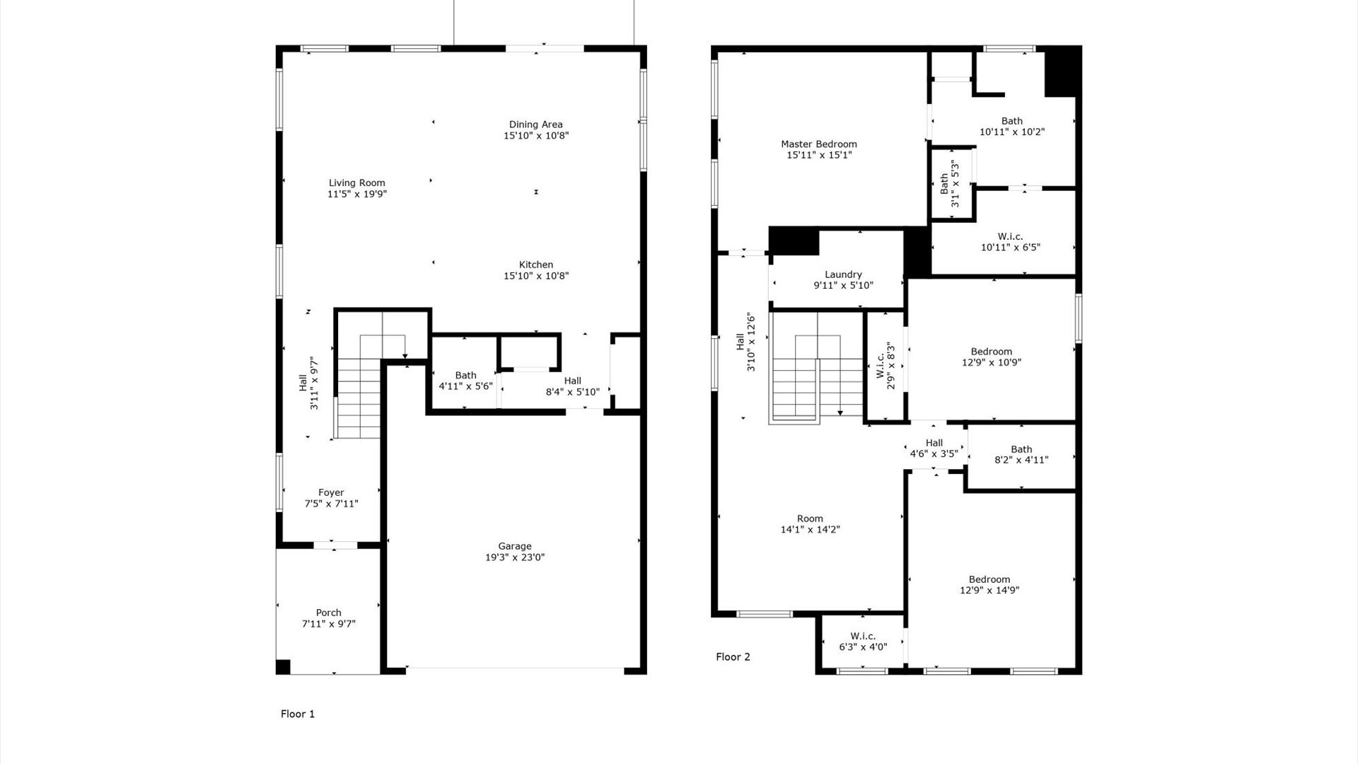
The Jasmine at Spring Branch by DRB Homes. Homesite 131- this design offers a spacious open concept design, that is perfect for entertaining. Features a formal entryway, spacious kitchen with island and large cafe area that is open to the family room. The main level also includes a coat closet and powder room. Upstairs, you'll find the primary suite with an oversized primary bathroom with a linen closet, dual vanities, shower, private water closet and large closet. Also, upstairs are 2 secondary bedrooms, a loft, full bathroom, and laundry room, with an optional 4th bedroom in place of the loft. The Grand Opening of Spring Branch is officially underway! Do not miss the opportunity for VIP incentives, for a limited time only! DRB Homes is offering $10,000 Flex Cash with use of preferred lender. Please reach out to Sales Consultant for more details on how that can be used. Must be pre-approved with preferred lender, Brightland Mortgage or New American Funding. Special Offer Details Apply. Contact the onsite Agent for Details.
| a week ago | Price changed to $439,990 | |
| a week ago | Listing updated with changes from the MLS® | |
| a month ago | Listing first seen on site |
Each Keller Williams Realty office is independently owned and operated.
Compare listings
ComparePlease enter your username or email address. You will receive a link to create a new password via email.