


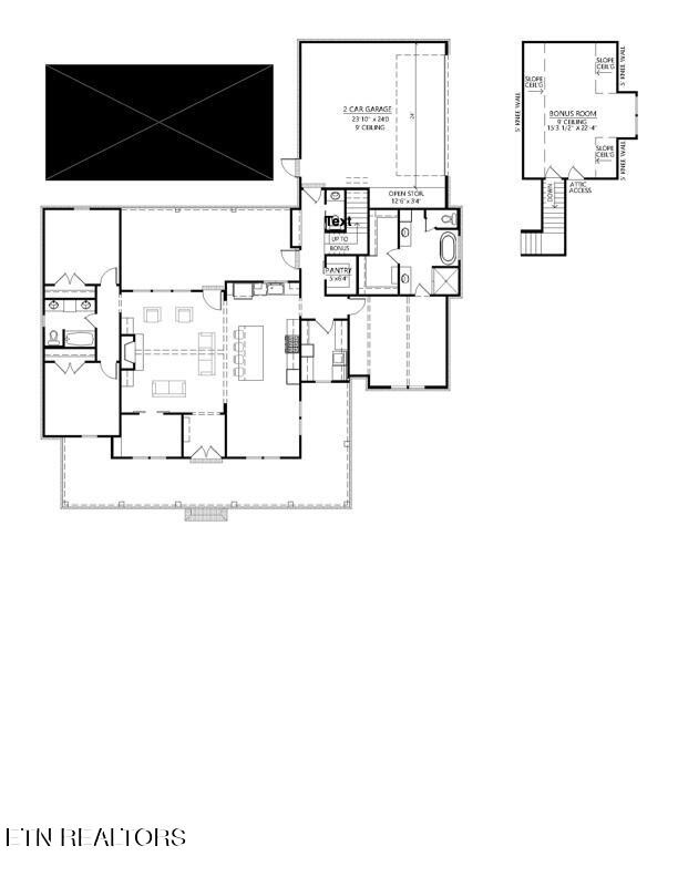
Seller has added 476 SF to the original plan and thus the increase in price. This thoughtfully designed 3,156 sq ft new construction home is currently underway and offers the perfect blend of modern comfort, efficient layout, and current style. Spacious main level with an open concept living, dining, and kitchen area ideal for everyday living and entertaining. Split bedroom layout providing privacy for the primary suite. Generously sized primary bedroom with ensuite bath and walk in closet. Two additional main level bedrooms with convenient access to a full bath. Dedicated laundry/mudroom connecting to the garage. An added feature is the 15x14 heated/cooled sunroom on the back of the house. Generously sized covered front porch and rear patio for outdoor enjoyment. Spacious oversized 702 sq ft 2 car garage. A huge highlight of this home above the 2 car garage is 614 sq ft finished bonus room w/full bathroom perfect for: a fourth bedroom, home office, media room, playroom, hobby or fitness space. With a total of 3,156 sq ft of usable space, this home offers the square footage and flexibility all wrapped in a brand new, energy efficient build. It's an ideal fit for families, work from home lifestyles, or anyone wanting a fresh start in a thoughtfully crafted home.
| 2 months ago | Listing first seen on site | |
| 2 months ago | Listing updated with changes from the MLS® |
Each Keller Williams Realty office is independently owned and operated.
Compare listings
ComparePlease enter your username or email address. You will receive a link to create a new password via email.