



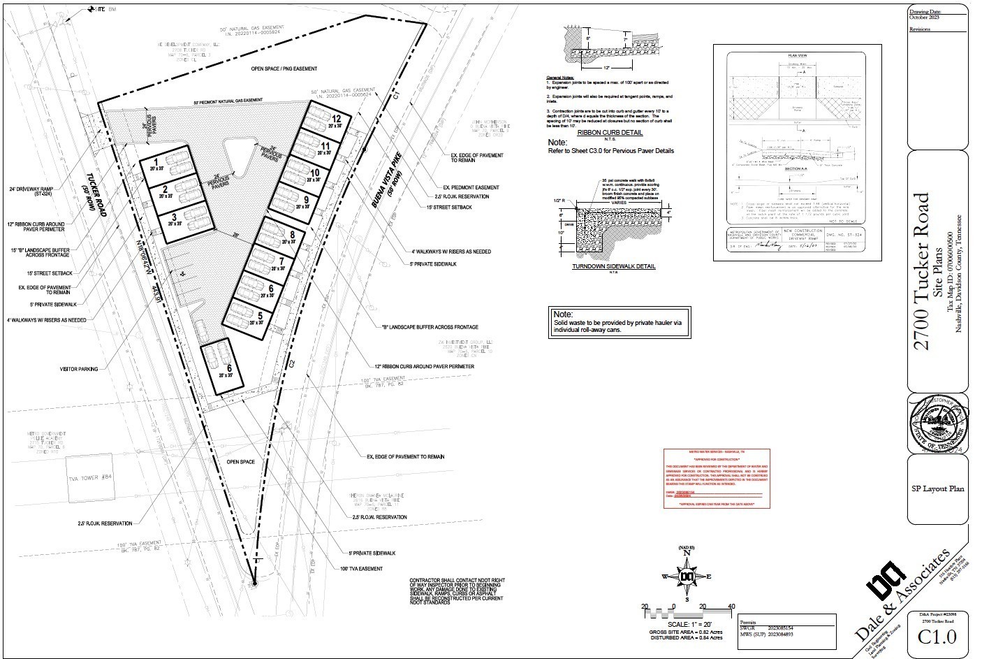
Fantastic corner Commercial Development Site for sale. Near Full 1-Acre Commercial-CL off booming W Trinity Ln Main Corridor. Approved and Shovel Ready for a 12-Unit STR EligibleTownhome Development, complete with Full Plans, Renders and Full Architecture included in sale! Existing Bar / Restaurant Building and Residential Rental Home on site - combined 3500 sq ft of space - that can be rehabbed or refitted for your commercial needs. Perfect for Developer looking for next ready to go shovel ready project; Buy and Hold Investor, Section 1031 Exchange; Investor looking for new commercial space or land with tons of flexibility and possibilities. Only 8-minutes from Downtown; the new Oracle Development; minutes from Germantown; East Nashville; West Nashville. All utilities at the street - Water, Gas, Electric - and ready to go. Flat site, minimal grading. Excellent site and location. Tons of options and possibilities. All Diligence and Materials available for review. Reach out to Agent with all questions. BRING ALL OFFERS. Owner / Agent. Taxes to be determined.
| 3 weeks ago | Price changed to $975,000 | |
| 3 weeks ago | Listing updated with changes from the MLS® | |
| a month ago | Listing first seen on site |
Each Keller Williams Realty office is independently owned and operated.
Compare listings
ComparePlease enter your username or email address. You will receive a link to create a new password via email.
This site uses third-party website tracking technologies to provide and continually improve your experience on our website and our services. You may revoke or change your consent at any time.
Did you know? You can invite friends and family to your search. They can join your search, rate and discuss listings with you.