



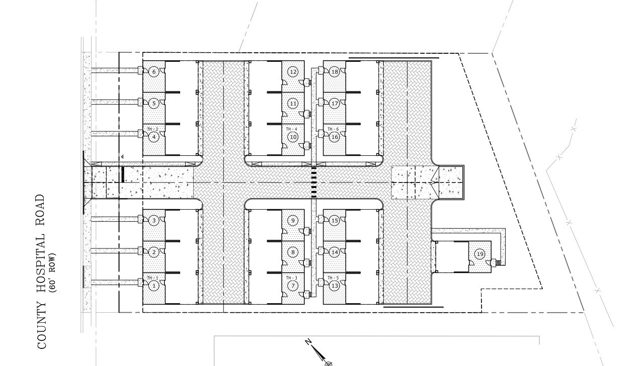
Selling Fully Entitled Infill Development site for 19 Units, 1.1 Acre Zoned CS on major and collector, NOO-STR Eligible in North Nashville / Bordeaux. Excellent Site. Complete with Full Engineering, W/S Capacities, Stamped and Approved Grading and Utility Plans, full Architectural Plans. Minutes from Downtown and the City's best attractions and amenities. Grandfathered Private Sewer, Gravity Tap in Rear, Water in Street, Minimum Grading, Simplified Utilities. Build 1800 sqft 4 Bed / 3.5 bath units for <$140 a ft Vertical + $55k a pad horizontal. Guaranteed unobstructed Downtown and Scenic Views. Multiple uses. Very flexible commercial service zoninf. Bring all Offers. Please reach out with any questions. Docs and Project Folder Link in Media Section. Owner / Agent. Taxes to be Determined.
| a week ago | Price changed to $1,450,000 | |
| a week ago | Listing updated with changes from the MLS® | |
| 2 months ago | Status changed to Active | |
| 3 months ago | Listing first seen on site |
Each Keller Williams Realty office is independently owned and operated.
Compare listings
ComparePlease enter your username or email address. You will receive a link to create a new password via email.
This site uses third-party website tracking technologies to provide and continually improve your experience on our website and our services. You may revoke or change your consent at any time.
Did you know? You can invite friends and family to your search. They can join your search, rate and discuss listings with you.