Save
Ask
Tour
Hide
Share
$715,000
1716 Days On Site

1708 Woodsong Drive
Brentwood, TN 37027

For Sale|Land|Pending
Subdivision:
Voce
County:
Davidson
Call Now: (615) 819-1996
Is this the listing for you? We can help make it yours.
(615) 819-1996
1708 Woodsong Drive1708 Woodsong Drive1708 Woodsong Drive1708 Woodsong Drive
Save
Ask
Tour
Hide
Share

Mortgage Calculator

Monthly Payment (Est.)

$3,262
Calculator powered by Showcase IDX, a Constellation1 Company. Copyright ©2026 Information is deemed reliable but not guaranteed.

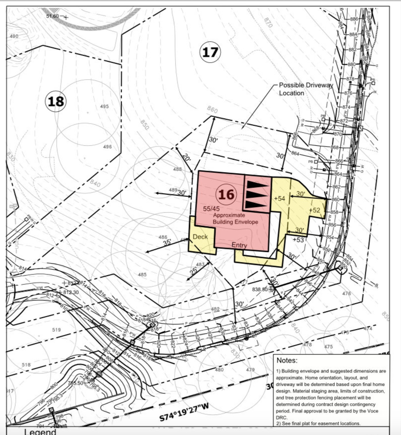
This is our final lot for sale. South Retreat Homesite #16. Build your custom estate dream home! Amazing location near Richland Country Club.

Save
Ask
Tour
Hide
Share
Listing Snapshot
Price 
$715,000
Days On Site 
1716 Days
Bedrooms 
N/A
Inside Area (SqFt) 
N/A
Total Baths 
N/A
Full Baths 
N/A
Partial Baths 
N/A
Lot Size 
0.88 Acres
Year Built 
N/A
MLS® Number 
2280828
Status 
Pending
Property Tax 
$1
HOA/Condo/Coop Fees 
$245 monthly
Sq Ft Source 
N/A
Friends & Family
Recent Activity
4 years agoStatus changed to Pending
4 years agoListing updated with changes from the MLS®
4 years agoPrice changed to $715,000
5 years agoListing first seen on site
General Features
Acres 
0.88
Additional Property Use 
Residential
Special Circumstances 
Standard
Water Source 
Public
Zoning 
RES
Save
Ask
Tour
Hide
Share
Exterior Features
Lot Features 
Sloped
Road Frontage 
City Street
Community Features
Association Dues 
735
HOA Fee Frequency 
Quarterly
Roads 
Asphalt
Schools
School District
Unknown
Elementary School
Percy Priest Elementary
Middle School
John T. Moore Middle School
High School
Hillsboro Comp High School
Listing courtesy of Armistead Arnold Pollard Real Estate, LLC

Listings courtesy of Realtracs as distributed by MLS GRID



Based on information submitted to the MLS GRID as of 2026-04-22 01:22 PM UTC. All data is obtained from various sources and may not have been verified by broker or MLS GRID. Supplied Open House Information is subject to change without notice. All information should be independently reviewed and verified for accuracy. Properties may or may not be listed by the office/agent presenting the information.

The Digital Millennium Copyright Act of 1998, 17 U.S.C. § 512 (the “DMCA”) provides recourse for copyright owners who believe that material appearing on the Internet infringes their rights under U.S. copyright law. If you believe in good faith that any content or material made available in connection with our website or services infringes your copyright, you (or your agent) may send us a notice requesting that the content or material be removed, or access to it blocked. Notices must be sent in writing by email to DMCAnotice@MLSGrid.com.
The DMCA requires that your notice of alleged copyright infringement include the following information: (1) description of the copyrighted work that is the subject of claimed infringement; (2) description of the alleged infringing content and information sufficient to permit us to locate the content; (3) contact information for you, including your address, telephone number and email address; (4) a statement by you that you have a good faith belief that the content in the manner complained of is not authorized by the copyright owner, or its agent, or by the operation of any law; (5) a statement by you, signed under penalty of perjury, that the information in the notification is accurate and that you have the authority to enforce the copyrights that are claimed to be infringed; and (6) a physical or electronic signature of the copyright owner or a person authorized to act on the copyright owner’s behalf. Failure to include all of the above information may result in the delay of the processing of your complaint.

Each Keller Williams Realty office is independently owned and operated.

Neighborhood & Commute
Source: Walkscore
Disclosure: Community information and market data powered by Constellation Data Labs. Information is deemed reliable but not guaranteed.
Save
Ask
Tour
Hide
Share

Compare listings

Compare